Fradleys Projects
The perfect Kitchen or bathroom project is defined by its skill, design, detail and finish

Before & After

Discover our 5-Day Bathroom Transformation Services Here
The perfect Kitchen or bathroom project is defined by its skill, design, detail and finish
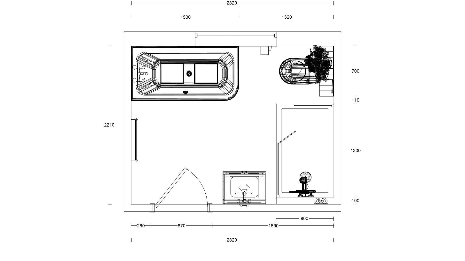
Over the years Fradleys have completed a number of kitchen and bathroom projects across Derby, all different, requiring specialist skills but all ending with very pleased clients. We are very proud of our work, here are a couple of our projects that demonstrate the scope of the work we do!


Fradleys Limited
Bezont House
Bradgate Park View
Derby
DE73 5UH